Industrial for sale, Kecskemét

Home » Industrial for sale, Kecskemét » Industrial for sale, Kecskemét

379 900 000 Ft

€976 757
Details of advertiser

Borosné Hajnalka

Write message
Message has to be minimum 10 characters.
Description

Translated text

Original text
ELADÓ Kecskeméten a Mindszenti krt.-ról könnyen megközelíthető, igényesen felújított telephely raktárral!

Jellemzői:
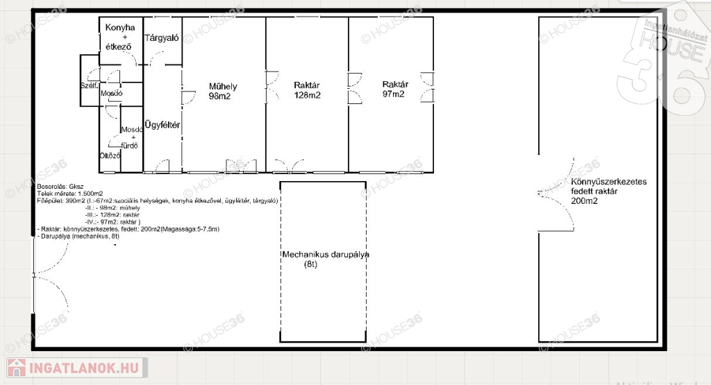
- Besorolás: Gksz
- Telek mérete: 1.500 m2
- Főépület: 390 m2 (I.: - 67 m2: szociális helységek, konyha, ügyféltér, tárgyaló
II.: - 98 m2: műhely
III.: - 128 m2: raktár
IV.: - 97 m2: raktár)
- Raktár: könnyűszerkezetes, fedett : 200 m2 (Magassága:5-7,5 m)
- Daru pálya: mechanikus (8t)
- Teljesen leburkolt terület
- Elektromos kapu
- Kamera rendszer + riasztó
- 2022-ben műszaki (vezeték-,nyílászáró- és tetőcsere, szigetelés, fűtéskorszerűsítés)- és esztétikai felújítások (burkolat- és konyhabútorcsere, fürdőszoba ill.festés)
- Klimatizált helyiségek

Az eladási ár az ÁFÁ-t nem tartalmazza!

Figyelem az adatlap megbízónktól kapott adatok alapján készült, pontosságáért felelősséget nem tudunk vállalni! Szolgáltatásaink Kereső ügyfeleink számára INGYENESEK! Amennyiben eladó-kiadó ingatlana van vagy finanszírozási megoldást keres, hívjon, megtaláljuk a legjobb lehetőséget Önnek! A HOUSE36 kínálatában található összes ingatlannal kapcsolatban tudok felvilágosítást nyújtani!
Hívjon bizalommal!
Az iroda legfrissebb, aktuális kínálatát a HOUSE36 saját weboldalán találja!

Details of Industrial

Average

Other

n/a

590 square meter

n/a

Map