Translated text
                                                    
                            Original text
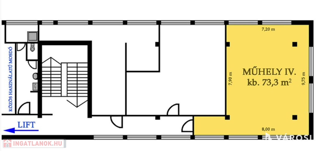
                            KIADÓ VILÁGOS MŰHELY / IRODA / RAKTÁR BUDAPESTEN
73,3 m²-es, III. emeleti helyiség, amely ideális választás:
- műhely céljára
- irodának
- webshop üzemeltetéséhez, csomagkezeléshez
- raktározás céljára
Előnyök, amit biztosítunk:
- 0-24 órás, önálló bejutás – bármikor dolgozhat vagy beugorhat
- Könnyen megközelíthető, frekventált iparterületen
- Távfelügyeletre kötött, telefonról vezérelhető riasztórendszer
- Közös területeken és környéken kamerás megfigyelés a nagyobb biztonságért
- Energiatakarékos fűtés/légkondicionálás hőlégbefúvással, alacsony rezsi
- Strapabíró kőburkolat, ami bírja a terhelést
- Ötpólusú ipari dugalj, így nagyobb teljesítményű gépekhez is ideális
- Természetes fénnyel megvilágított, világos tér
- Teherlift és lépcső egyaránt rendelkezésre áll
- Akadálymentesített környezet
Költségek:
Bérleti díj: 194.900 Ft/hó, 3 havi kaucióval (az ár az Áfát tartalmazza)
Villany: saját mérőóra alapján, fogyasztás szerint (a fűtést is ez tartalmazza)
Üzemeltetési díj: kb.22 000 Ft/hó, amely tartalmazza a közös mosdó, lift, kamerarendszer és távfelügyelet költségeit (az ár az Áfát is tartalmazza)
Egyéb tudnivalók:
A bérlemény egy négyszintes irodaépület III. emeletén található, teherlifttel és kényelmes lépcsőfeljáróval. 
A minimális szerződési idő 1 év.
Várom hívását. Ingatlannal és hitelügyekkel kapcsolatos kérdésekben bármikor, hangsúlyozom, bármikor hívhat.
De tényleg :-)
BRIGHT WORKSHOP / OFFICE / STORAGE FOR RENT IN BUDAPEST
73.3 m² unit on the 3rd floor, which is an ideal choice for:
workshop purposes
office
running a webshop, handling packages
storage purposes
Advantages we provide:
24/7 independent access – you can work or drop by anytime
Easily accessible, in a frequented industrial area
Alarm system connected to remote monitoring, controllable from your phone
Camera surveillance on common areas and around the building for increased security
Energy-efficient heating/air conditioning with hot air blower, low utility costs
Durable stone flooring that withstands heavy use
Five-pole industrial socket, ideal for high-performance machinery
Naturally lit, bright space
Freight elevator and stairs both available
Barrier-free environment
Costs:
Rent: 194,900 HUF/month, with 3 months deposit (price includes VAT)
Electricity: based on own meter, according to consumption (also covers heating)
Operating fee: approx. 22,000 HUF/month, which includes the cost of the shared restroom, elevator, camera system and remote monitoring (price also includes VAT)
Other information:
The rental unit is located on the 3rd floor of a four-storey office building, easily accessible by freight elevator and convenient staircase.
Minimum contract period is 1 year.
I look forward to your call.
For any questions regarding property or financing matters, you can call me anytime — I emphasize, anytime.
Really :-)
(További képekért és információkért kérem hívjon!)                        
Average
Workshop
n/a
73 square meter
n/a
Find the perfect house, apartment, office, garage, land property or any other kind of real property!
The Realestate.hu is a member of the Real Estate Group.
Real estates in Hungary - Realestate.hu © 2025 All rights reserved