House for sale, Dömsöd

Home » House for sale, Dömsöd » House for sale, Dömsöd

109 900 000 Ft

€281 918
Details of advertiser

Kristóf László

Write message
Message has to be minimum 10 characters.
Description

Translated text

Original text

Dömsödön eladó Rönkház a Duna-parton a nyugalom szigetén!

Dunától 40 méterre Dömsödön a Középső út 123 alatt

Festői környezetben nagyon rendes szomszédokkal 40 m-re a Duna parttól

A házon Napelemek kerültek beszerelésre 10 év garanciával a házra 30 év garancia van.

Iskola ,óvoda a közelben minden megtalálható a környékben pár perces sétára 

Buszmegálló ,boltok,piac stb.

Ráckevei gyógyfürdő 12 km-re.

A lakás hitelezhető mindennek megfelel amit a bankok kérnek!

Vadonatúj építésű a ház!#

Összközműves:(víz,gáz,csatorna,villany plusz fúrt kút)

Öntözőrendszer (ami

Vadonatúj fúrtkútról megy így a víz ingyen van)

Napelem 5kw (bővíthető)

Energia takarékos panelek minden szobában.

Riasztó ami a helyi Sion Securityhez van bekötve.

Beépített konyhabútor 

10cm-es külső szigetelés plussz

belül 15 cm szigetelés ,

Tető 30 cm szigetelés pluszban!

Nyílászárók 3 rétegű üveggel.

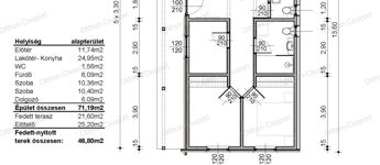
3 szobás,plusz nappali amerikai konyha ,fürdőszoba és plussz WC,

72nm alapterület

Plusz a két terasz 47nm

114.990.000ft

40 millió Ft-ig ingatlant beszámítunk - kizárólag Pest megyében

06-20-805-20-28

Details of House

72 square meter

715 square meter

excellent

Self-contained house

Trunk

Other

n/a

Double convenience

n/a

n/a

n/a

n/a